Wohnung mit ca. 52m² / 2 Räumen / Tageslichtbad / 3. OG inmitten vom verkehrsgünstigen Reutershagen!


Vermarktung & Preis
| Vermarktungsart: | Kauf |
|---|
| Nutzungsart: | Wohnen |
|---|
| Kaufpreis | 175.950,00 EUR |
Energieausweis
| Energieausweis: | Verbrauchsausweis |
| Energieverbrauch: | 146.00 kWh/(m²a) |
| Energieausweis gültig bis: | 2028-05-08 |
Detaildaten
| Objektart: | Wohnung |
| Objekttyp: | Etage |
| Baujahr: | 1953 |
| Wohnfläche | 52,00 m² |
| Zimmeranzahl: | 2 |
Beschreibung
Sie suchen eine Eigentumswohnung als zukünftigen Wohnsitz in Rostock?
Eine zentrale Lage mit einer guten Anbindung an die öffentlichen Verkehrsmittel ist Ihnen besonders wichtig?
Weiterhin sollte das Stadtzentrum nicht weit entfernt sein, aber die Wohngegend soll dennoch ein ruhiges Umfeld haben?
Dann ist diese Wohnung genau das Richtige für Sie!
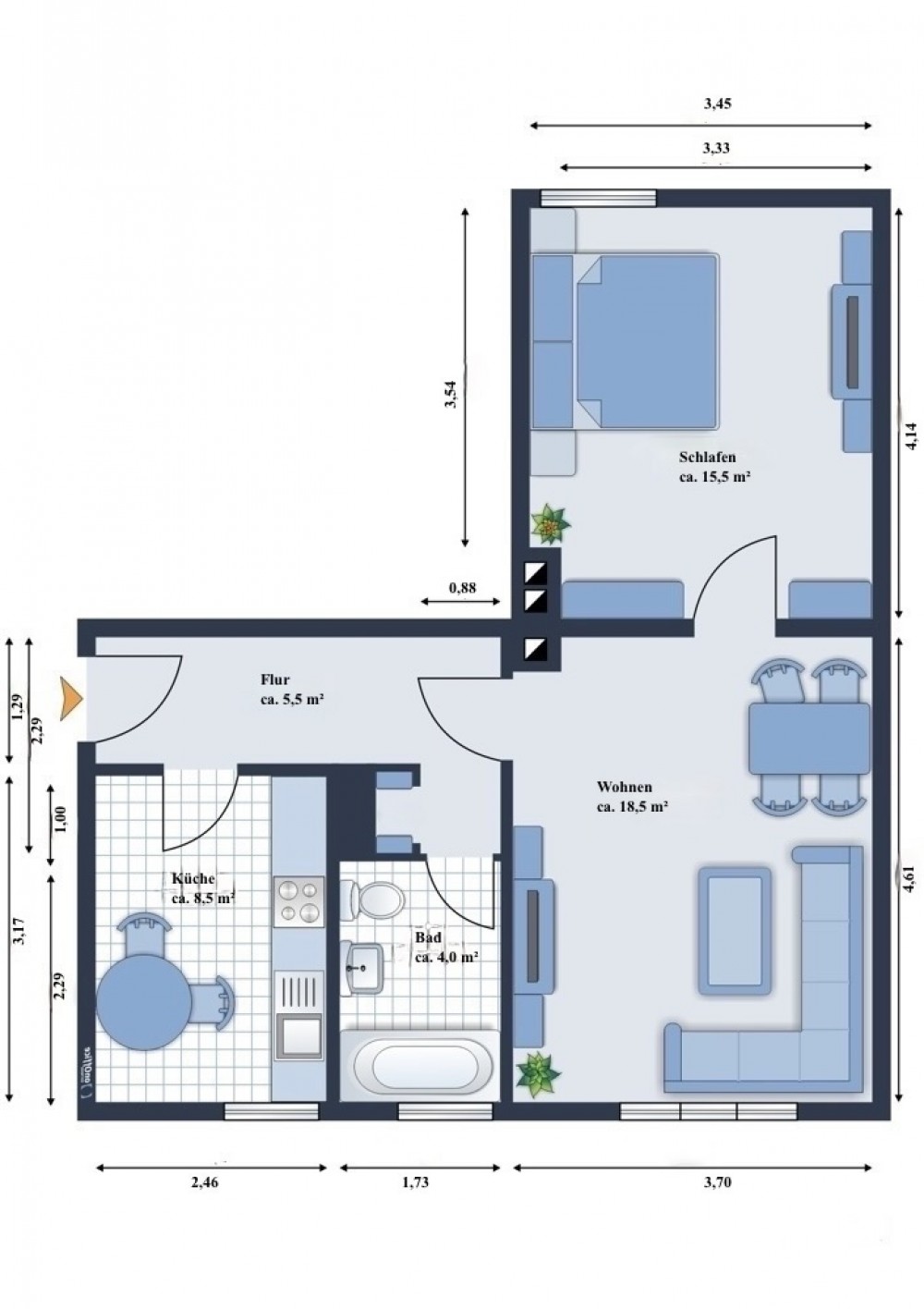
Die ca. 52 m² große Wohnung liegt im 3. Obergeschoss eines 4-geschossigen Mehrfamilienhauses.
Diese überzeugt durch eine optimale Raumaufteilung für einen 1-2 Personen Haushalt.
Durch das helle und geräumige Treppenhaus gelangen Sie in die gemütliche Wohnung. Neben einem langen Flur mit praktischer kleiner Abseite bietet Ihnen die Wohnung ein großzügiges Wohnzimmer mit Durchgang in das gemütliche Schlafzimmer. Die großen Fenster verleihen den Räumlichkeiten ein besonders freundliches Ambiente. Die charmante 2-Raum Wohnung wird durch eine separate Küche, einem hellen Tageslicht-Wannenbad sowie einem praktischen Keller und Dachbodenabteil perfekt abgerundet.
Auch als Kapitalanlage mit guter Rendite ist dieses Wohnensemble interessant.
Über die vergangenen 10 Jahre war diese Wohnung durchweg vermietet und hat eine Jahresnettokaltmiete von 7.140 € erzielt.
Wohnen in verkehrsgünstiger und ruhiger Lage garantiert!
Ausstattung
Die Wohnung befindet sich in einem ca. 1953 massiv mit Stahlbeton erbauten Mehrfamilienhauskomplexes mit einer Putzfassade sowie einem flachen Pultdach.
Der gesamte Wohnkomplex besitzt 56 Wohneinheiten und 5 Aufgänge.
Wohnfläche: ca. 52 m²
Flur: ca. 5,5 m²
Küche: ca. 8,5 m²
Wannenbad: ca. 4 m²
Wohnzimmer: ca. 18,5 m²
Schlafzimmer: ca. 15,5 m²
Allgemeines:
In den Wohnräumen sowie im Flur wurde Laminat verlegt.
Die Küche sowie das Tageslicht-Wannenbad wurden mit Fliesen ausgestattet.
Das Badezimmer verfügt über eine Badewanne und ist umlaufend türhoch gefliest.
Die Räumlichkeiten sind mit einer Raufasertapete als Wand- und teilweise Deckengestaltung versehen.
Ein Waschmaschinenanschluss befindet sich sowohl im Badezimmer, als auch in der Küche.
Die Warmwasseraufbereitung erfolgt zentral über die Heizungsanlage.
Die gesamte Wohnung verfügt über doppelt verglaste Kunststofffenster aus dem Jahr 2017.
Der Wohnung ist ein ca. 5 m² großer Kellerabteil zugeordnet.
Eine Dachbodenkammer gehört auch zur Wohnung.
Sanierungs- und Renovierungsmaßnahmen:
1995 bis 1996 - Diverse Sanierungs- und Erneuerungsarbeiten, wie Elektro-, Wasser- und Abwasserleitungen sowie der Austausch der Fenster und Türen, haben stattgefunden.
2002 bis 2003 - Sanierung sämtlicher Hauseingänge und Podeste der einzelnen Wohnhäuser.
2005 bis 2006 - Die Fassade wurde erneuert.
2009 bis 2011 - Das Pultdach wurde ausgebessert.
2020 - Austausch zu doppelt verglasten Energiesparfenster (Kunststoff) sowie deren Fensterbänke
2021 - Gaszentral-Heizung wurde komplett erneuert.
2024 – Austausch zu moderner Gegensprechanlage
Lage
Die Hansestadt Rostock liegt an der Mündung der Warnow und ist das wirtschaftliche und touristische Zentrum Mecklenburg-Vorpommerns.
Die Wohnung liegt in Reutershagen, einem der beliebtesten Stadtteile in Rostock. Hier gibt es eine exzellente Infrastruktur, eine sehr gute Verkehrsanbindung und vielfältige, in nur wenigen Minuten erreichbare Einkaufsmöglichkeiten. Mehrere Ärztehäuser befinden sich im direkten Umfeld der Wohnung, auf der gegenüberliegenden Straßenseite oder ca. 200 m entfernt in der Ernst-Thälmann-Straße.
Ein Sportcenter, eine Schule, sowie der Schwanenteichpark, welcher im Sommer zum verweilen einlädt sind ca. 10 Minuten Fußweg entfernt. Die Neptun Schwimmhalle, wie auch das Ostseestadion sind ca. 3 km entfernt.
Parkplätze sind im öffentlichen Straßenbereich vorhanden.
Durch die unmittelbare Nähe zu Straßenbahn und S-Bahn sind Sie in kürzester Zeit im Stadtzentrum, bei den jeweiligen Universitätseinrichtungen oder am Strand des Ostseebades Warnemünde.
Besonderes
Es liegt ein Energieverbrauchsausweis vor.
Dieser ist gültig bis 8.5.2028.
Endenergieverbrauch beträgt 146.00 kwh/(m²*a).
Wesentlicher Energieträger der Heizung ist Gas.
Das Baujahr des Objekts lt. Energieausweis ist 1994.
Die Energieeffizienzklasse ist E.
Aktuell ist die Wohnung vermietet. Der Mieter plant seinen Auszug zum Sommer 2026!
Malerarbeiten, der Austausch der Bodenbeläge und die Badmodernisierung obliegen dem neuen Eigentümer und sind bei der Kaufpreisbildung bereits berücksichtigt.
Die Einbauküche ist kein Bestandteil des Kaufpreisangebots.
Art des Energieausweises: Verbrauchsausweis
Energieverbrauch: 146 kWh
Wesentliche Energieträger: Gas
Baujahr Haus: 1953
Baujahr Heizung: 1994/2021
Energieeffizienzklasse: E
gültig bis: 08.05.2028
Provision beträgt 3,57% inkl. 19 % gesetzl. Ust. vom Kaufpreis.
Der Makler-Vertrag mit unserem Unternehmen entsteht durch schriftliche Vereinbarung oder durch die Inanspruchnahme unserer Maklertätigkeit. Die Vertragsbasis bildet das Objekt-Exposé. Die Käuferprovision ist bei notariellem Vertragsabschluss verdient und fällig. Die Edelmann Immobilien-MV GmbH erhält einen unmittelbaren Zahlungsanspruch gegenüber dem Käufer. Grunderwerbsteuer, Notar- und Gerichtskosten trägt der Käufer.
Bitte haben Sie dafür Verständnis, dass unser Büro Ihre Anfrage nur bearbeiten kann, wenn folgende Daten vollständig angegeben werden:
- NAME
- WOHNANSCHRIFT
- TELEFONNUMMER
- E-MAIL ADRESSE
Alle Angaben basieren auf Informationen und Hinweisen, die wir vom Auftraggeber erhalten haben. Für deren Richtigkeit, Aktualität und Vollständigkeit können wir keine Gewähr übernehmen. Irrtümer und Zwischenverkauf bleiben vorbehalten.
Mit freundlichen Grüßen
Ihr Team von
Edelmann-Immobilien-MV

