Einfamilienhaus mit viel Potenzial - Ca. 92 m² Whfl. auf 927 m² großem Grdst. in Greifswald Eldena.


Vermarktung & Preis
| Vermarktungsart: | Kauf |
|---|
| Nutzungsart: | Wohnen |
|---|
| Kaufpreis | 267.900,00 EUR |
Energieausweis
| Energieausweis: | Verbrauchsausweis |
| Energieverbrauch: | 186.00 kWh/(m²a) |
| Energieausweis gültig bis: | 2035-09-11 |
Detaildaten
| Objektart: | Haus |
| Objekttyp: | Einfamilienhaus |
| Baujahr: | 1955 |
| Wohnfläche | 92,00 m² |
| Grundstücksfläche | 927,00 m² |
| Zimmeranzahl: | 4 |
Beschreibung
Sie suchen ein Haus in dem Sie sich selbst verwirklichen und es ganz nach Ihren eigenen Vorstellungen gestalten können?
Sie sind eine kleine Familie und möchten sich den Traum vom Eigenheim im beliebten Greifswald Eldena erfüllen?
Sie wünschen sich ein gemütliches Zuhause mit einem idyllischen Garten zum Entspannen und Wohlfühlen?
Dann ist dieses Einfamilienhaus genau das Richtige für Sie!
Das Einfamilienhaus mit einer Wohnfläche von ca. 92 m² bietet eine solide Grundlage für ein zukünftiges Familien mit bis zu vier Personen. Im Eingangsbereich befindet sich ein Windfang, der in einen zentralen Flur führt. Dieser bietet Platz für eine Garderobe und ermöglicht einen direkten Zugang zu den weiteren Räumen des Erdgeschosses.
Das lichtdurchflutete Wohnzimmer verfügt über ein angrenzendes Zimmer, welches ideal als Esszimmer genutzt werden kann oder auch durch neue Gestaltungsideen als ein großer Raum umfunktioniert werden kann.
Die separate Küche ist großzügig geschnitten und wird durch einen Abstellraum ergänzt, der zusätzlichen Stauraum bietet.
Abgerundet wird das Erdgeschoss mit einem Wannenbad.
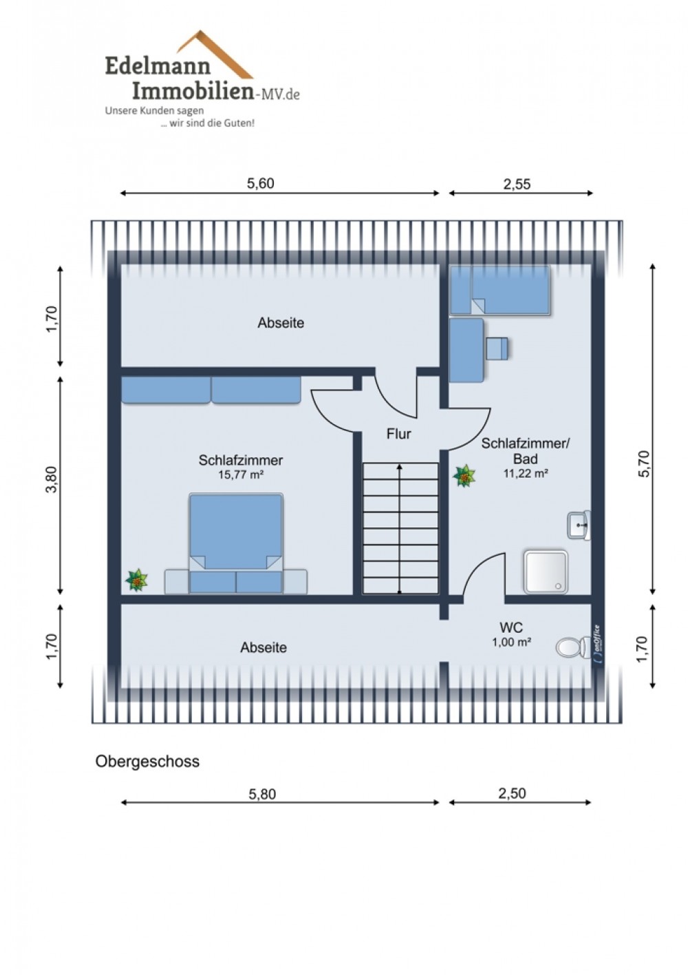
Im Obergeschoss stehen zwei weitere Zimmer zur Verfügung, die sowohl als Kinderzimmer als auch als Büro oder Gästezimmer geeignet sind. Die vorhandenen Abseiten sorgen für praktischen Stauraum, ohne die Wohnfläche einzuschränken. Ein zusätzliches WC mit Dusche ergänzt das Raumangebot und macht das Obergeschoss zu einer voll nutzbaren Wohnetage.
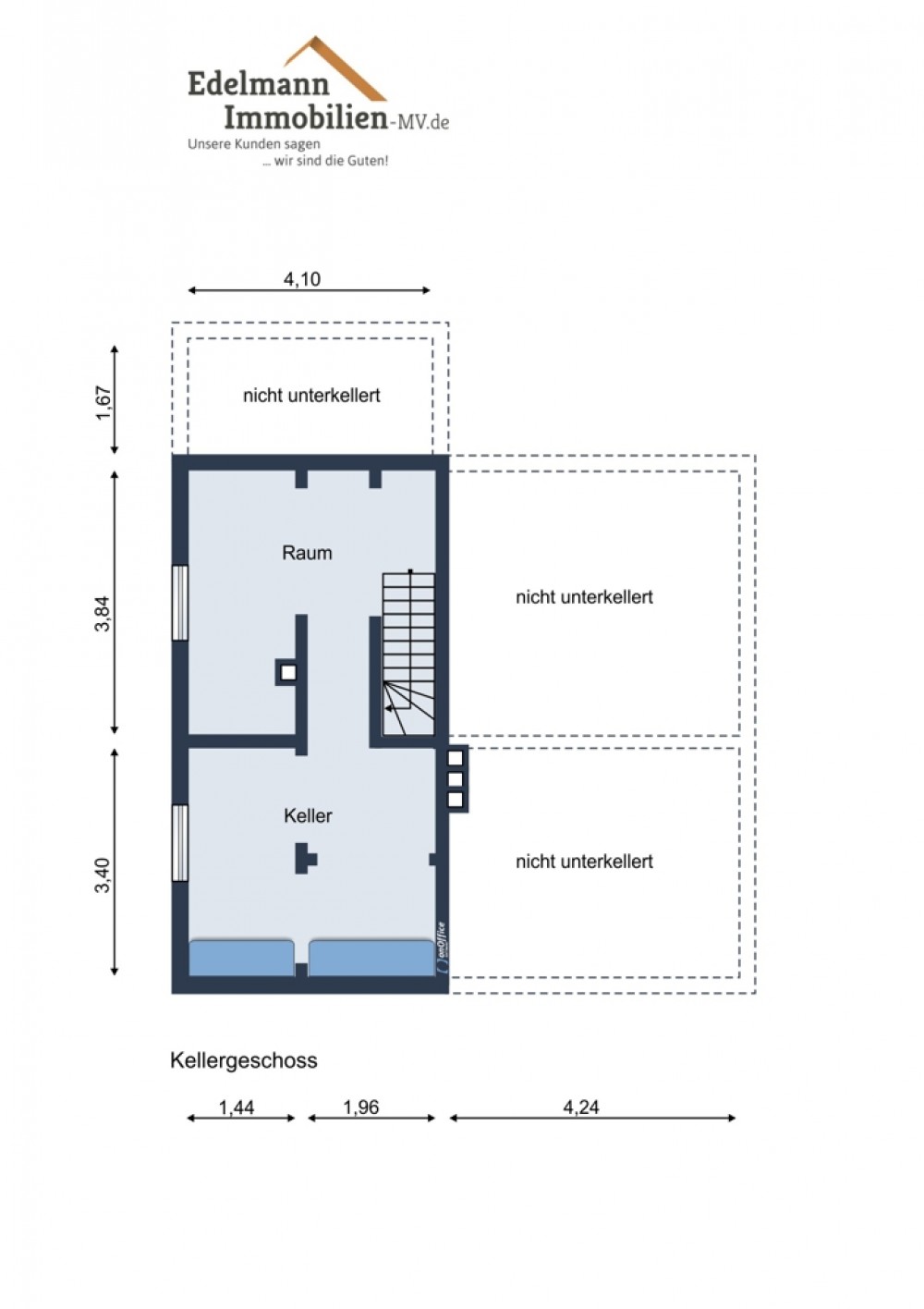
Der praktische Keller bietet Lagermöglichkeiten, die für Vorräte, saisonale Utensilien oder Haushaltsgeräte genutzt werden können.
Ihr neues Zuhause in Greifswald Eldena - Umgestalten, einziehen und Wohlfühlen.
Ausstattung
| |
| Heizungsart | Gasheizung |
| Gartennutzung | ja |
Das Einfamilienhaus wurde 1955 in einer massiven Bauweise mit Satteldach und Teilunterkellerung auf einem 927m² großem Grundstück errichtet und verfügt über folgende Ausstattung:
Allgemeine Ausstattung:
Die Fenster sind zweifach isoliert und aus Kunststoff.
Einzelne Fenster verfügen praktischerweise über manuell bedienbare Rollläden.
Die Innentüren sind aus massivem Holz.
Ein Internetanschluss ist über Kabel und DSL verfügbar.
Die Gaszentralheizung ist von der Marke Junkers und verfügt über einen Warmwasserpseicher mit einem Volumen von 80l.
Erdgeschoss:
Windfang: ca. 6 m², Linoleum, Tapete und Holz
Wohnzimmer: ca. 18 m², Holz und Tapete
Schlaf-/Esszimmer: ca. 15,5 m², Teppich, Tapete und Styropor
Küche: ca. 12,5 m², Teppich, Tapete und Styropor
Abstellraum: ca. 1,5 m²
Badezimmer: ca. 4 m², Fliesen und Holz
Obergeschoss:
Kinderzimmer: ca. 11m², Teppich und Tapete
Schlafzimmer: ca. 16 m², Teppich und Tapete
Bad: ca. 1m², Teppich und Tapete
Modernisierungen:
Fenster - 1995
Bäder - 1990er
Leitungen - 1990er (teilweise älter)
Heizung - 2020 (Therme und Warmwasserspeicher)
Lage
Das Haus befindet sich im familienfreundlichen Stadtteil Eldena in Greifswald – ruhig, grün und dennoch stadtnah gelegen. Eldena besticht durch seine idyllische Umgebung mit viel Natur, Wiesen und Wäldern sowie der Nähe zum Greifswalder Bodden, die zu Spaziergängen, Fahrradtouren und gemeinsamen Aktivitäten im Freien einladen.
Für Familien besonders attraktiv ist die hervorragende Infrastruktur: Kindergärten, Schulen und Spielplätze sind in kurzer Zeit erreichbar, sodass Kinder einen sicheren und unkomplizierten Alltag genießen können. Einkaufsmöglichkeiten für den täglichen Bedarf, Ärzte und Apotheken befinden sich ebenfalls in der Nähe, ebenso wie Freizeit- und Sportangebote.
Die gute Anbindung an den öffentlichen Nahverkehr sowie die Nähe zum Stadtzentrum von Greifswald sorgen dafür, dass Eltern, Pendler und Schüler schnell und bequem unterwegs sind. Gleichzeitig bietet Eldena den Kindern einen sicheren, ruhigen Rückzugsort zum Spielen und Entdecken.
Eldena verbindet somit ländliche Ruhe, viel Natur und familienfreundliche Infrastruktur mit der Nähe zur Stadt – ideal für Familien, die ein harmonisches, naturnahes Zuhause suchen, in dem sich Kinder frei entfalten und Eltern den Komfort der Stadt genießen können.
Besonderes
Es liegt ein Energieverbrauchsausweis vor.
Dieser ist gültig bis 11.9.2035.
Endenergieverbrauch beträgt 186.00 kwh/(m²*a).
Wesentlicher Energieträger der Heizung ist Gas.
Das Baujahr des Objekts lt. Energieausweis ist 1955.
Die Energieeffizienzklasse ist F.
Modernisierungs- und Renovierungsarbeiten sowie die Sanierung des Kellers obliegen dem neuen Eigentümer und sind bei der Kaufpreisbildung bereits berücksichtigt.
Die Küche ist kein Bestandteil des Kaufpreises.
Art des Energieausweises: Verbrauchsausweis
Energieverbrauch: 186 kWh/(m²*a)
Wesentliche Energieträger: Gas
Baujahr: 1955
Energieeffizienzklasse: F
Bitte haben Sie dafür Verständnis, dass unser Büro Ihre Anfrage nur bearbeiten kann, wenn folgende Daten vollständig angegeben werden:
- NAME
- WOHNANSCHRIFT
- TELEFONNUMMER
- E-MAIL ADRESSE
Alle Angaben basieren auf Informationen und Hinweisen, die wir vom Auftraggeber erhalten haben. Für deren Richtigkeit, Aktualität und Vollständigkeit können wir keine Gewähr übernehmen. Irrtümer und Zwischenverkauf bleiben vorbehalten.
Mit freundlichen Grüßen
Ihr Team von
Edelmann-Immobilien-MV

