| Objektart: | Haus | Einfamilienhaus |
|---|---|
| Objektlage: | 18182 Gelbensande |
| Fläche: | Wohnfläche: 1,00 m² |
| Zimmeranzahl: | 9 |
| Verfügbar ab: | nach Vereinbarung |
| Kaufpreis: | 99.950,00 € |
| Provision: |


| Vermarktungsart: | Kauf |
|---|---|
| Nutzungsart: | Gewerbliche Nutzung |
| Kaufpreis | 99.950,00 EUR |
| Objektart: | Haus |
| Objekttyp: | Einfamilienhaus |
| Wohnfläche | 1,00 m² |
| Nutzfläche | 300,00 m² |
| Grundstücksfläche | 1358,00 m² |
| Zimmeranzahl: | 9 |
Das historische Bahnhofsgebäude in Gelbensande wurde um ca. 1890 in massiver Bauweise errichtet und diente ursprünglich sowohl als Bahnhofsgebäude als auch als Wohnhaus für Bahnbeamte.
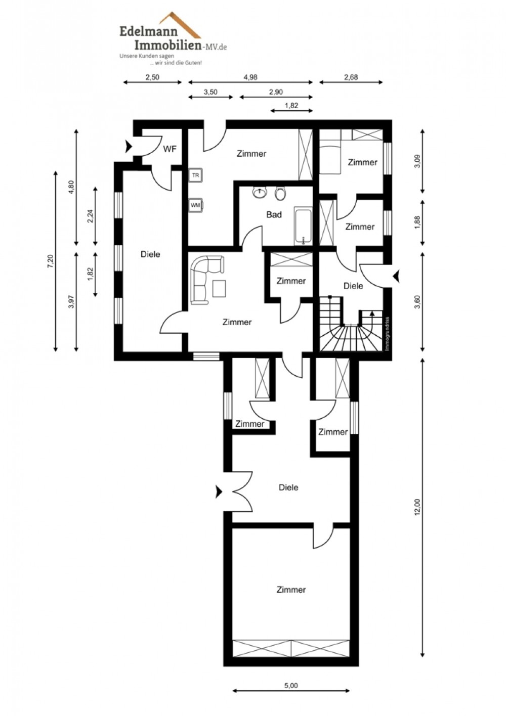
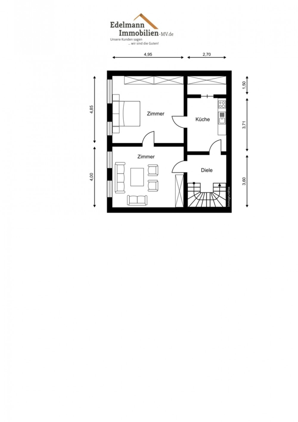
Das Objekt befindet sich auf einem ca. 1.358 m² großen Grundstück und verfügt über eine Nutzfläche von insgesamt ca. 300 m² Nutzfläche. Das Gebäude ist teilunterkellert. Neben dem Hauptgebäude ist ein Anbau vorhanden, der ebenfalls in die Nutzung einbezogen ist. Ein Teil des Gebäudes ist derzeit an die Bahngesellschaft vermietet.
Aufgrund seiner historischen Bedeutung steht das Gebäude unter Denkmalschutz.
Das denkmalgeschützte Bahnhofsgebäude verfügt über einen vorhandenen Gas- und Wasseranschluss. Die aktuell vermietete Einheit wird über Stromheizplatten beheizt. Im Haupthaus sowie im Anbau sind einfach verglaste Holzfenster verbaut.
Das Gebäude ist weiterhin teilunterkellert.
Aufgrund des Denkmalschutzes sowie der Lage und bestehenden baulichen Gegebenheiten können keine Garantien hinsichtlich Bebauungs-, Umnutzungs- oder Erweiterungsmöglichkeiten übernommen werden. Eine zukünftige Nutzung oder bauliche Veränderung bedarf der Abstimmung mit den zuständigen Behörden.
Gelbensande ist eine Gemeinde im Landkreis Rostock in Mecklenburg-Vorpommern und Sitz des Amtes ”Rostocker Heide”.
Der ca. 1.500 Einwohner zählende Ort befindet sich an der Bundesstraße 105 ca. 10km südwestlich der Bernsteinstadt Ribnitz-Damgarten und ca. 13 km nordöstlich der Hansestadt Rostock am Rand der ”Rostocker Heide”.
Einen Tante Emma Laden und Ärzte gibt es im Ort. Grundschule, Gymnasium und weitere Einkaufsmöglichkeiten befinden sich im ca. 5 km entfernten Rövershagen.
Verkehrstechnisch ist der Ort mit einem Bahnhof an das Netz der Deutschen Bahn angebunden. Von dort verkehren täglich Züge nach Ribnitz-Damgarten und in die Hansestädte Rostock sowie Stralsund.
Die Ostseeautobahn A20, Anschlussstelle Rostock Ost ist mit dem Pkw in ca. 20 Minuten zu erreichen.
Die idyllische Lage und die Nähe zur Ostsee, ca. 10 km entfernt vom weißen Sandstrand des Ostseeheilbades Graal-Müritz und ca. 15 Autominuten entfernt vom Ostseebad Dierhagen, machen
Gelbensande zu einem beliebten Wohnort vieler Pendler.
Sämtliche Sanierungs- und Renovierungsarbeiten wurden bei der Kaufpreisbildung berücksichtigt.
Für das hier angebotene, unter Denkmalschutz stehenden Bahnhofsgebäude besteht keine Pflicht zur Vorlage eines Energieausweises. Gemäß § 105 des Gebäudeenergiegesetzes (GEG).
Bitte haben Sie dafür Verständnis, dass unser Büro Ihre Anfrage nur bearbeiten kann, wenn folgende Daten vollständig angegeben werden:
- NAME
- WOHNANSCHRIFT
- TELEFONNUMMER
- E-MAIL ADRESSE
Alle Angaben basieren auf Informationen und Hinweisen, die wir vom Auftraggeber erhalten haben. Für deren Richtigkeit, Aktualität und Vollständigkeit können wir keine Gewähr übernehmen. Irrtümer und Zwischenverkauf bleiben vorbehalten.
Mit freundlichen Grüßen
Ihr Team von
Edelmann-Immobilien-MV

