| Objektart: | Lagerhalle / Produktionshalle | Halle |
|---|---|
| Objektlage: | 18209 Bad Doberan |
| Fläche: | Gesamtfläche: 140,00 m² |
| Zimmeranzahl: | Keine Angaben |
| Verfügbar ab: | vsl. 01.04.2026 |
| Mietpreis: | 1.300,00 € zzgl. NK |


| Vermarktungsart: | Miete / Pacht |
|---|---|
| Nutzungsart: | Gewerbliche Nutzung |
| Kaltmiete | 1.300,00 EUR |
| Nebenkosten | 100,00 EUR |
| Warmmiete | 1.400,00 EUR |
| Mietpreis pro m² | 9,29 EUR |
| Energieausweis: | Bedarfsausweis |
| Energieausweis gültig bis: | 2036-02-05 |
| Objektart: | Lagerhalle / Produktionshalle |
| Objekttyp: | Halle |
| Baujahr: | 2026 |
| Gesamtfläche | 140,00 m² |
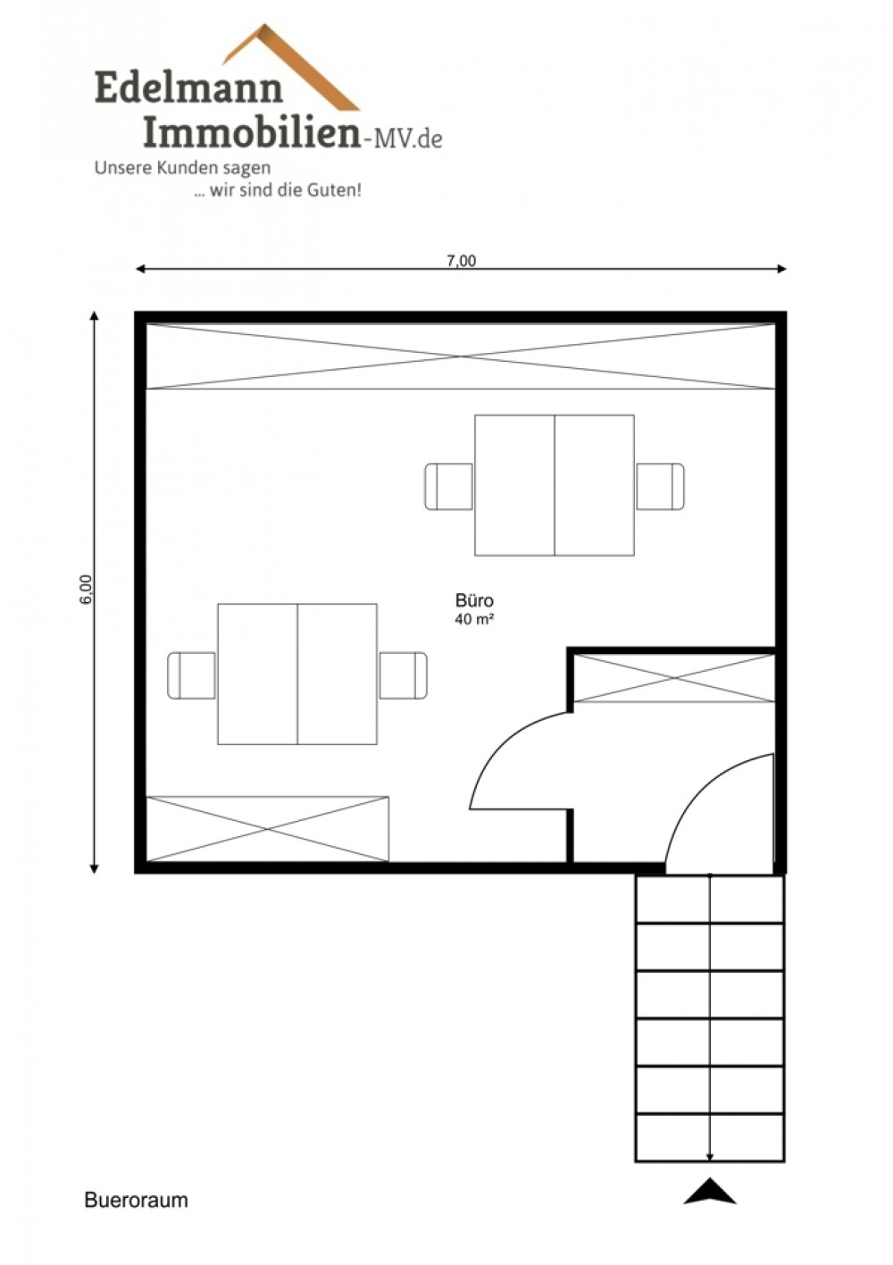
| Bürofläche | 40,00 m² |
| Lagerfläche | 100,00 m² |
Die sich derzeit im Bau befindliche Produktions- und Lagerhalle wird voraussichtlich zum 01.04.2026 fertiggestellt und bietet moderne, flexibel nutzbare Gewerbeflächen für unterschiedlichste betriebliche Anforderungen.
Das Hallengebäude ist als große, zusammenhängende Halle konzipiert, welche sich in vier Hallenabschnitte teilt, von denen zwei zu gleichen Konditionen vermietet werden.
Die einzelnen Einheiten eignen sich ideal für Produktions-, Lager- oder Handwerksbetriebe, die eine funktionale und gut strukturierte Gewerbefläche suchen.
Jede Einheit ist in eine ca. 100 m² große Lager- und Produktionsfläche sowie eine ca. 40 m² umfassende Bürofläche aufgeteilt.
Die Verwaltungseinheit ist als Büroebene auf einer eingezogenen Zwischenkonstruktion innerhalb der Halle realisiert und ermöglicht eine klare funktionale Trennung von Verwaltung und Betriebsabläufen bei gleichzeitig kurzen Wegen.
Die Halle verfügt über eine Traufhöhe von ca. 6,00 m sowie eine Firsthöhe von ca. 7,32 m, wodurch eine gute Raumausnutzung und flexible Gestaltungsmöglichkeiten für Maschinen, Regalsysteme oder Produktionsprozesse gewährleistet sind.
Je Halle sind insgesamt vier Stellplätze zugeordnet, die Mitarbeitern oder Besuchern zur Verfügung stehen.
Dank der modernen Bauweise, der Beheizung der Hallenabschnitte sowie der flexiblen Flächenstruktur bietet das Objekt optimale Voraussetzungen für eine zeitgemäße gewerbliche Nutzung und lässt sich an individuelle betriebliche Anforderungen anpassen.
Die Konstruktion der Halle überzeugt durch eine solide, funktionale und auf Langlebigkeit ausgelegte Bauweise.
Der massive Boden aus Beton bildet die stabile Basis des Gebäudes und gewährleistet eine hohe Tragfähigkeit sowie eine dauerhafte Standfestigkeit.
Die Außenhülle der Halle ist mit modernen Sandwichpaneelen aus Stahlblech mit integrierter Wärmedämmung ausgeführt. Diese Bauweise vereint eine hohe statische Belastbarkeit mit sehr guten wärmedämmenden Eigenschaften und trägt maßgeblich zu einem energieeffizienten Betrieb bei.
Der Zugang zu den Hallen erfolgt über ein elektrisches Rolltor mit einer Durchfahrtshöhe und -breite von jeweils ca. 3,50 m, wodurch auch größere Fahrzeuge, Maschinen oder Materiallieferungen problemlos einfahren können, sowie einer Tür.
Die Hallen- und Büroflächen sind beheizt und jeweils mit Heizkörpern ausgestattet, sodass eine ganzjährige Nutzung gewährleistet ist.
Zahlreiche Fensterflächen sorgen für einen hohen Tageslichteinfall und schaffen ein helles, angenehmes Arbeitsumfeld mit reduzierter Abhängigkeit von künstlicher Beleuchtung.
Die Einheiten sind funktional ausgestattet und verfügen über einen Küchenanschluss (Pantry). Sanitäreinrichtungen mit WC und Urinal sind ebenfalls vorhanden und runden die praxisorientierte Ausstattung ab.
Insgesamt bietet die Halle eine moderne, durchdachte und vielseitig nutzbare Gewerbefläche, die sich ideal für Produktions-, Lager- oder Handwerksbetriebe eignet und flexibel an unterschiedliche betriebliche Anforderungen angepasst werden kann.
Die Lagerhalle befindet sich in der Stadt Bad Doberan im Landkreis Rostock.
Der Standort überzeugt durch seine sehr gute verkehrliche Anbindung sowie die Nähe zur Ostseeküste und zur Hansestadt Rostock.
Über die in unmittelbarer Nähe verlaufende Bundesstraße B105 besteht eine schnelle und direkte Verbindung in Richtung Rostock sowie in westlicher Richtung nach Wismar.
Die Autobahn A20 ist in kurzer Fahrzeit erreichbar und gewährleistet eine zügige Anbindung an überregionale Wirtschaftszentren wie Lübeck, Schwerin oder Stralsund.
Die Halle liegt innerhalb des Gewerbegebiets von Bad Doberan. Das Umfeld ist gepflegt und funktional ausgerichtet.
Die Zufahrt zum Grundstück erfolgt direkt von der öffentlichen Straße. Ausreichend Platz für Liefer-, Rangier- und Andienungsverkehr ist vorhanden.
Durch die Kombination aus gewachsener Gewerbestruktur, hervorragender Verkehrsanbindung und der Nähe zur Ostseeküste bietet der Standort Bad Doberan ideale Voraussetzungen für Lager-, Produktions- oder Handwerksbetriebe, die Wert auf gute Erreichbarkeit und eine leistungsfähige Infrastruktur legen.
Es liegt ein Energiebedarfsausweis vor.
Dieser ist gültig bis 5.2.2036.
Endenergiebedarf beträgt 155.10 kwh/(m²*a).
Wesentlicher Energieträger der Heizung ist Gas.
Das Baujahr des Objekts lt. Energieausweis ist 2025.
Die Energieeffizienzklasse ist E.
Bitte beachten Sie, dass es sich bei den angegebenen Preisen um die gewerbliche Anmietung/Vermietung EINER Einheit handelt.
Auf die Nettokaltmiete von 1.300 € je Einheit werden 19% MwSt. gerechnet.
Die Gesamtmiete ergibt sich aus: Kaltmiete + MwSt. + Nebenkosten.
Aufgeteilt wird die Miete in Büro-, Lagerfläche und Stellplätze.
Die Miete beträgt 500,00 € für das Büro, 800,00 € für die Lagerfläche.
Separat können für 100,00 € vier Stellplätze angemietet werden.
Art des Energieausweises: Bedarfsausweis
Energiebedarf: 155,1 kWh/(m²*a)
Wesentliche Energieträger: Gas
Baujahr: 2025
Energieeffizienzklasse: E
Bitte haben Sie dafür Verständnis, dass unser Büro Ihre Anfrage nur bearbeiten kann, wenn folgende Daten vollständig angegeben werden:
- NAME
- WOHNANSCHRIFT
- TELEFONNUMMER
- E-MAIL ADRESSE
Alle Angaben basieren auf Informationen und Hinweisen, die wir vom Auftraggeber erhalten haben. Für deren Richtigkeit, Aktualität und Vollständigkeit können wir keine Gewähr übernehmen. Irrtümer und Zwischenverkauf bleiben vorbehalten.
Mit freundlichen Grüßen
Ihr Team von
Edelmann-Immobilien-MV

